Descrizione Appartamento

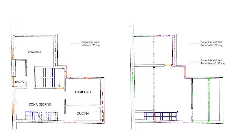
SESTRI PONENTE, VIA PAGLIA, SIAMO LIETI DI PROPORRE IMMOBILE SU DUE LIVELLI COMPLETAMENTE RISTRUTTURATO di mq 70 più circa 60 mq mansardati (di cui circa 30 finestrati) . L'appartamento è posto ad un quarto piano di un palazzo privo di ascensore ed è così composto : ingresso in sala alla genovese, cucinotto, due camere da letto e servizio ; al piano superiore mansardato , ampio locale finestrato posto in corrispondenza del colmo del tetto ed altri ripostigli situati nelle parti più basse. Rifiniture di notevole pregio, termoautonomo con basse spese di gestione.€ 145.000,00. CL F IMMOBILIARE SP SESTRI PONENTE 010 650.80.80

Informazioni
Riferimento PAGLIA 145
Data Annuncio 20/03/2025
Città Genova
IndirizzoVIA PAGLIA
TavolaSestri Ponente/ Borzoli-Erzelli-Fegino-V.Potens
Caratteristiche
TipologiaAppartamento
SezioneImmobile Residenziale
Contratto Vendita
Prezzo145.000 €
Spese Condominiali70,00
Anno Costruzione1900
StatoLibero al Rogito
Stato ManutenzioneRistrutturato
Classe EnergeticaF ≤ 160 KWh (m²a)
Descrizione
MQ Totali76
Piano4
Totale piani5
Livelli2
Numero Locali4 Locali
RiscaldamentoAutonomo
CucinaCucinino / Cucinotto
Camere4
Bagni1
Arredato Non Arredato
Tipo CostruzioneCivile
Numero Vani6 Vani e mezzo
Nuovo Si
Esposizione Esterna Si
Esposizione Interna Si
Materiale BagnoCeramica
Materiale CucinaCeramica
Materiale SoggiornoCeramica
Materiale Camera da lettoCeramica
BoxNo
Immobiliare SP

IMMOBILIARE SP Medio Ponente

Vico al Gazzo 14 Rosso - 16154 - Genova Medio Ponente

Richiedi informazioni

Condividi:

Altri immobili che potrebbero interessarti