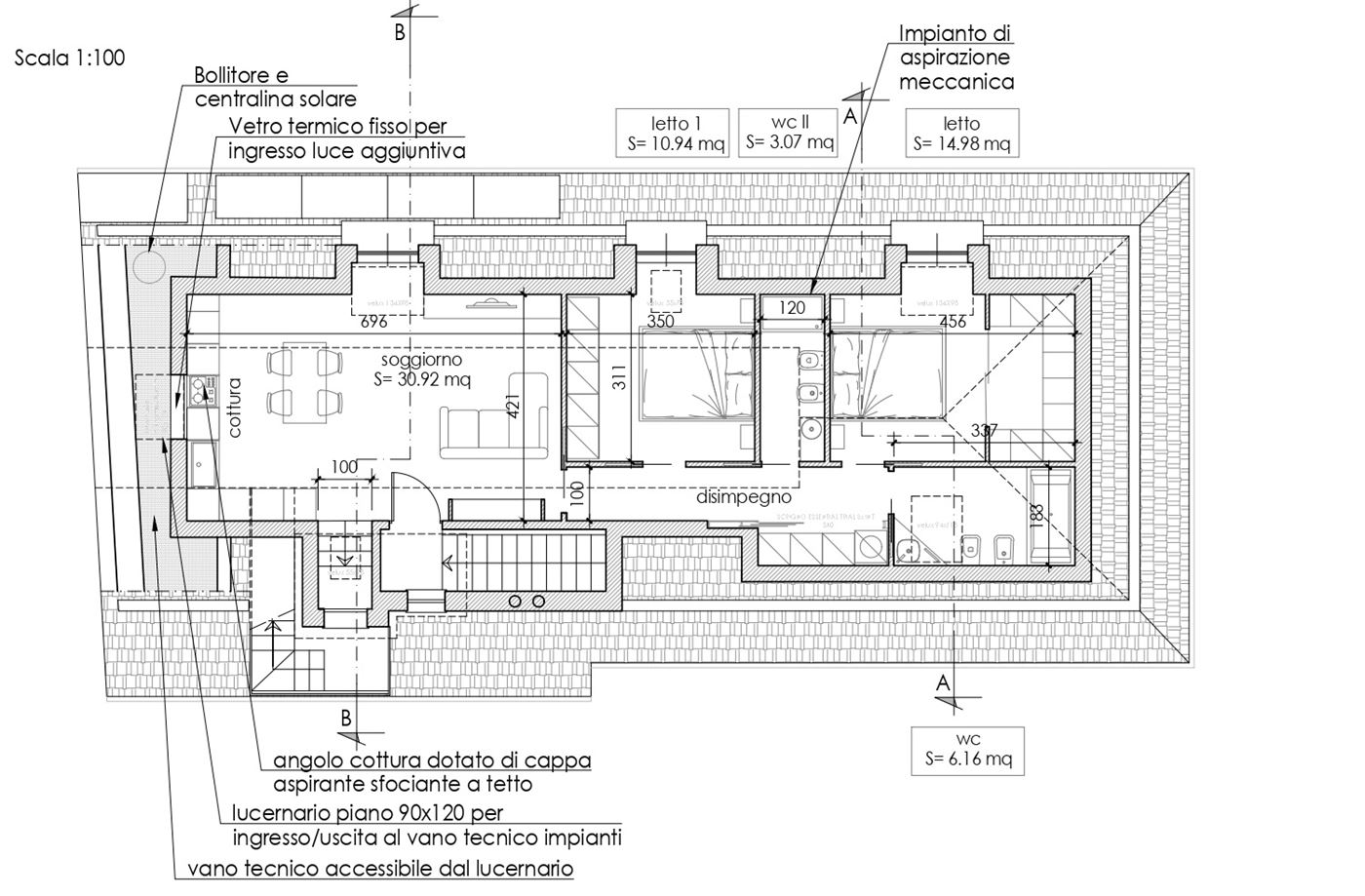
Descrizione Appartamento

Begato, in antico Casale del 1800 totalmente ristrutturato e suddiviso in diverse unità immobiliari, proponiamo ultimo alloggio in vendita posto al piano attico con accesso diretto al terrazzo soprastante, l'alloggio viene proposto al grezzo con le rifiniture da personalizzare, è cosi composto: ingresso in ampia zona living con vista panoramica, e accesso diretto e privato al terrazzo soprastante, 2 camere da letto, 2 bagni. L'appartamento gode di una visuale panoramica che si estende dal paese di Begato al mare passando per i forti "Puin" e "Sperone", l'impiantistica si avvale dell'ausilio di pannelli solari e fotovoltaici e cappotto termico, le parti comuni sono ben curate e suddivise in modo da garantire privacy e autonomia ad ognuno dei 4 condomini presenti nello stabile. Completano la proposta 2 posti auto scoperti e la possibilità di una fascia di terreno da utilizzare come orto o attività ludiche. Nel prezzo proposto di € 170.000,00 l'immobile viene consegnato con le finiture da personalizzare. Il condominio non ha spese di amministrazione e la ristrutturazione delle parti comuni è NUOVA. IMMOBILIARE SP GENOVA 010.29.29.062

Informazioni
Riferimento BEGATO
Data Annuncio 22/04/2025
Città Genova
Indirizzovia Caneva
TavolaSampierdarena / S.Teodoro / Val Polcevera
Caratteristiche
TipologiaAppartamento
SezioneImmobile Residenziale
Contratto Vendita
Prezzo170.000 €
Anno Costruzione1830
StatoLibero
Stato ManutenzioneRistrutturato
Classe EnergeticaA ≤ 30 KWh (m²a)
Spese Condominiali Incluse Si
Descrizione
MQ Totali122
Piano2
Totale piani2
Livelli2
Numero Locali4 Locali
RiscaldamentoAutonomo elettrico
CucinaA Vista
Camere2
Bagni2
Arredato
Terrazzi1
MQ Terrazzi40
Tipo CostruzioneEpoca
Numero Vani6 Vani
Esposizione Esterna Si
BoxPosto auto
Immobiliare SP

IMMOBILIARE SP Genova centro

Via Fieschi 110 Rosso - 16121 - Genova

  Tel: 0102929062
  
  Email: genova@immobiliaresp.it

Richiedi informazioni

Condividi:

Altri immobili che potrebbero interessarti