Descrizione Casa Indipendente

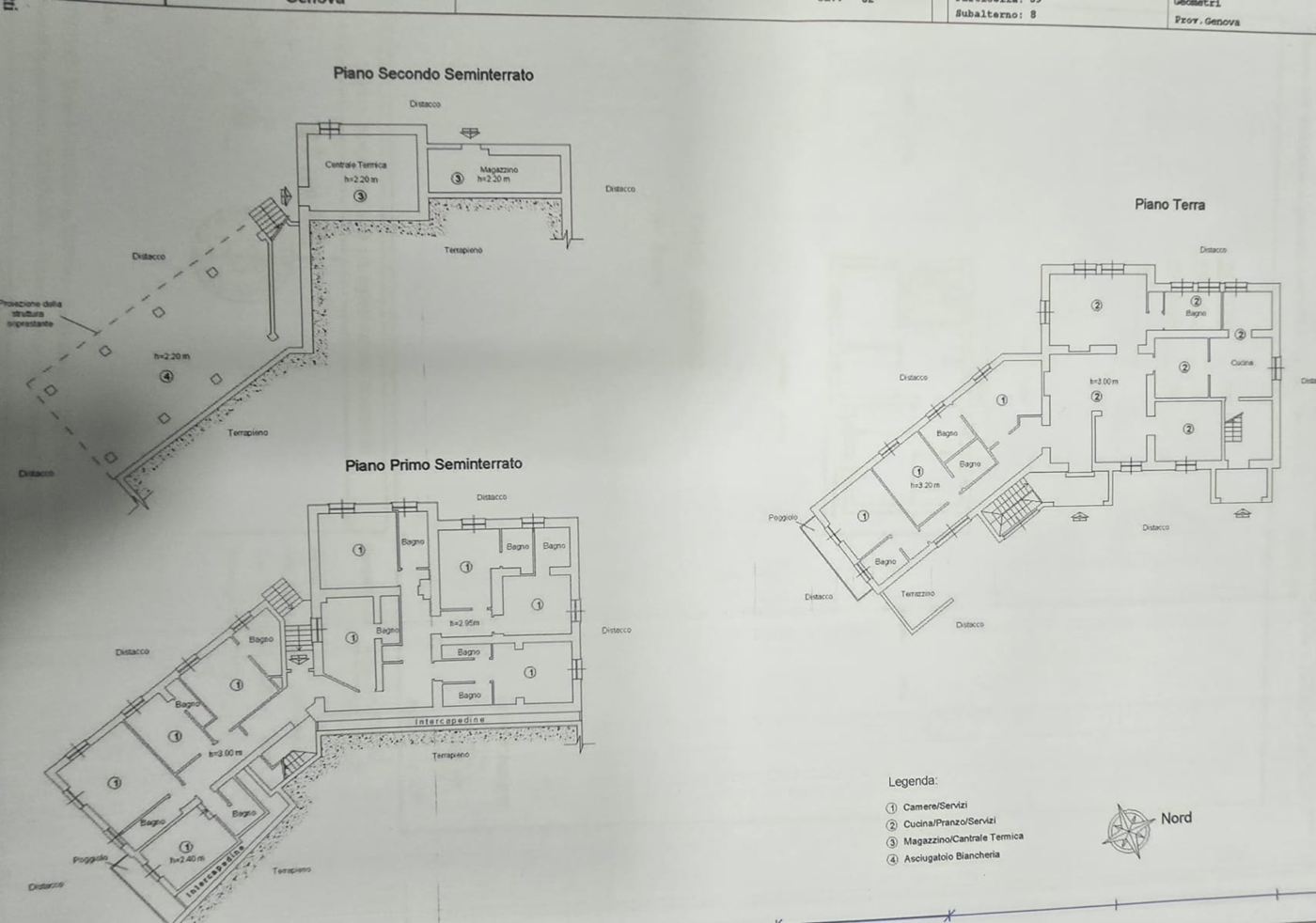
VOLTRI- MELE, VIA FADO, PROPONIAMO IN VENDITA INTERA PALAZZINA INDIPENDENTE CON GIARDINO CIRCOSTANTE CARRABILE E SCORCIO MARE. L'immobile è composto da una prima parte di circa 315 mq , un tempo adibita ad albergo, attualmente in disuso, ma in discreto stato di manutenzione, composta da 12 camere con bagno privato, sala recepcion, 4 salette, cucina bagno comune. La seconda parte consiste in due appartamenti terrazzati di 98 mq circa l'uno, composti da sala, cucina, due camere e servizio. Prezzo richiesto: € 397.000,00 CL G IMMOBILIARE SP SESTRI PONENTE 010 650.80.80

Informazioni
Riferimento FADO 397
Data Annuncio 25/11/2025
Città Mele
IndirizzoVIA FADO
TavolaFado
Caratteristiche
TipologiaCasa Indipendente
SezioneImmobile Residenziale
Contratto Vendita
Prezzo397.000 €
StatoLibero al Rogito
Stato ManutenzioneMediocre
Classe EnergeticaG > 160 KWh (m²a)
Descrizione
MQ Totali520
Piano1
Totale piani3
Livelli3
Numero LocaliVarie
RiscaldamentoAutonomo
CucinaAbitabile
Camere20
Bagni15
Arredato Semi arredato
Terrazzi4
MQ Terrazzi40
Tipo CostruzioneCivile
Numero Vani10 Vani e oltre
Nuovo Si
Esposizione Esterna Si
Materiale BagnoCeramica
Materiale CucinaCeramica
Materiale SoggiornoCeramica
Materiale Camera da lettoCeramica
BoxPosto auto
Immobiliare SP

IMMOBILIARE SP Medio Ponente

Vico al Gazzo 14 Rosso - 16154 - Genova Medio Ponente

Richiedi informazioni

Condividi:

Altri immobili che potrebbero interessarti